XJG型慣性共振式給料機
概述
慣性共振式給料機(振動布料機)是我廠引進國外技術,替代進口產品的機型,慣性共振式給料機(振動布料機)采用雙質體近共振原理,參照國內外各類給料機優點及用戶使用要求而研制的,給料機的主振系統采用了特制橡膠與金屬板粘合組合式主振彈簧,隔振系統采用了復合式彈簧。該機調速采用機械調速,但可根據用戶要求配備變頻調速器實現無級調速來改變振幅,以控制給料速度。
特點
慣性共振式給料機(振動布料機)激振器的偏心錘通過皮帶輪,由電動機帶動,具有防塵、防水、防爆等性能,該產品結構合理、節能、噪聲小、重量輕、壽命長,是一種理想給料設備。

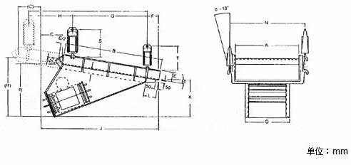
XJG型慣性共振式給料機外型與尺寸圖:


XJG型慣性共振式給料機案例展示

本圖片為鞍鋼新一號高爐工作現場慣性共振式給料機(振動布料機)

慣性共振式給料機(振動布料機)鞍鋼新一號工作現場

參數
XJG型慣性共振式給料機(振動布料機)——主要技術參數
| 型號 | 功率(KW) | 槽體尺寸 | 重量(Kg) | 槽體最大給料量 | |
| (寬×長)m/m | 煤(t/h) | 砂子(t/h) | |||
| XJC-50 | 3 | 500×760 | 750 | 100 | 150 |
| XJG-70 | 4 | 700×1220 | 1100 | 240 | 360 |
| XJG-90 | 4 | 900×1370 | 1400 | 320 | 480 |
| XJC-120 | 4 | 1200×1830 | 1650 | 560 | 840 |
| XJG-150 | 7.5 | 1500×2140 | 2100 | 960 | 1450 |
| XJG-180 | 11 | 1800×2440 | 2600 | 1200 | 1800 |
| XJC-200 | 15 | 2000×2745 | 3700 | 1520 | 2280 |
| XJG-240 | 18.5 | 2400×3360 | 4800 | 1920 | 2880 |
XJG型慣性共振式給料機(振動布料機)外型與尺寸
單位:mm
| 型號 | A | B | C | E | F | G | H | J | K | L | N | P | Q | R | S | T |
| XJC-50 | 500 | 760 | 130 | 130 | 87 | 648 | 119 | 775 | 320 | 95 | 590 | 40 | 400 | 455 | 460 | 160 |
| XJG-70 | 700 | 1220 | 150 | 180 | 165 | 1010 | 140 | 1295 | 450 | 150 | 875 | 95 | 510 | 660 | 610 | 190 |
| XJG-90 | 900 | 1370 | 200 | 200 | 233 | 1175 | 235 | 1340 | 440 | 180 | 1070 | 95 | 635 | 680 | 610 | 225 |
| XJC-120 | 1200 | 1830 | 260 | 200 | 276 | 1600 | 390 | 2065 | 585 | 200 | 1440 | 100 | 740 | 900 | 550 | 480 |
| XJG-150 | 1500 | 2140 | 420 | 200 | 210 | 1760 | 560 | 2520 | 745 | 230 | 1740 | 150 | 940 | 1120 | 635 | 555 |
| XJG-180 | 1800 | 2440 | 540 | 200 | 355 | 1875 | 710 | 2940 | 810 | 380 | 2050 | 150 | 1115 | 1230 | 845 | 845 |
| XJC-200 | 2000 | 2745 | 635 | 255 | 416 | 2100 | 820 | 3310 | 845 | 450 | 2270 | 180 | 1100 | 1320 | 845 | 845 |
| XJG-240 | 2400 | 3050 | 620 | 255 | 480 | 2350 | 790 | 3625 | 840 | 510 | 2670 | 200 | 1385 | 1370 | 845 | 845 |
說明:XJG系列與GZX系列標準相同。(本產品己用單位:鞍鋼新一號高爐,齊大山選礦廠,香港特區牛頭角采石場,山東揚子石化)
XJGf型慣性共振式給料機(振動布料機)主要技術參數
| 型號 | 功率(KW) | 槽體尺寸 (寬×長)m/m | 重量(Kg) | 槽體最大給料量 | |
| 煤(t/h) | 砂子(t/h) | ||||
| XJGF-70 | 3 | 700×1500 | 750 | 200 | 300 |
| XJGF-80 | 3 | 800×1500 | 950 | 350 | 470 |
| XJGF-100 | 4 | 1000×1750 | 1150 | 400 | 530 |
| XJGF-110 | 4 | 1000×1750 | 1250 | 500 | 660 |
XJGF型外型與尺寸
單位:mm
型號
L1
L2
L3
L4
L5
H1
H2
H3
B1
B2
B3
XJGF-70
2510
1500
760
1100
2570
1185
300
550
1200
700
720
XJGF-80
2550
1500
500
1200
2775
1238
300
550
1250
800
720
XJGF-100
2650
1750
500
1240
2845
1280
300
550
1400
1000
720
XJGF-110
2760
1750
550
1600
2905
1308
300
550
1482
1100
720
用途
慣性共振式給料機廣泛用于礦山、冶金、煤炭、建材、輕工、化工、電力、糧食等各行各業中,用以把塊狀、顆粒狀及粉狀物料從貯料倉或漏斗中均勻連續或定量地給到受料裝置中去。例如向破碎、選煤、篩分、運輸、包裝機械等給料、配料等。
相關產品
-
GZG自同步慣性振動給料機
GZG、GZGF自同步慣性振動給料機是一種經濟技術指標先進的給料設備,用于把塊狀、顆粒狀及粉狀物料從貯料倉或漏斗中均勻連續或定量地給到受料裝置中去。配套反接制動控制箱,可使給料機在短時間內迅速停機,同時還具有過流、過壓、斷相保護作用。
立即了解?GZG自同步慣性振動給料機
-
GZGB、GZGBF系列自同步慣性振動給料機
本系列給料機是GZG、GZGF系列自同步慣性振動給料機的改型設計。
立即了解?GZGB、GZGBF系列自同步慣性振動給料機
-
BZG普通電機驅動慣性振動給料機
BZG系列普通電機驅動慣性振動給料機吸取了GZG系列、GZY系列振動給料機等機型的優點,采用低頻率大振幅振動,處理量大,是一種理想的高效低噪音給料機。
立即了解?BZG普通電機驅動慣性振動給料機
-
同步慣性給料機
同步慣性給料機配套反接制動控制箱,可使給料機在短時間內迅速停機,同時還具有過流、過壓、斷相保護作用,它是一種經濟技術指標先進的給料設備,用于把塊狀、顆粒狀及粉狀物料從貯料倉或漏斗中均勻連續或定量地給到受料裝置中去。
立即了解?同步慣性給料機
動態
-
05
2020-12
慣性振動給料機在試運轉時要注意的事項
慣性振動輸送機是一種無牽引構件的連續輸送機械,主要由承載構件、彈性元件及激振器等組成。慣性振動輸送機具有結構簡單、性能穩定、安裝方便、工作可靠等特點。慣性振動輸送機試運轉前,電氣系統、安全連聯鎖裝置、制動裝置、操作控制系統和信號系統均應經模擬或操..
-
27
2015-04
談談慣性振動給料機使用條件如何
自同步慣性振動給料機是由給料槽體、激振器、彈簧支座、傳動裝置等組成。
-
20
2012-05
振動篩的三種篩分順序
1、序列法:由細到粗的篩分。檢修方便,容易觀察振動篩各層篩面的工作情況,在由細到粗的篩分流程中,篩面順次地按照篩孔增加的順序排列。除此之外單軸振動篩,各篩可以沿整個篩面長.. 直線篩 慣性共振式給料機 1、序列法:由細到粗往復式給料機的篩分。檢修方便,容..
-
19
2012-05
振動篩軸承箱密封分析與改進
瀝青混凝土攪拌設備拌制瀝青混凝土混合料時,儲存在不同料斗內的冷砂石料經給料器粗配后進入干燥滾筒,在干燥滾筒內進行烘干、加熱的同時又被混合在一起
-
06
2012-05
螺旋輸送機技術原理及結構特點分析
高效直線振動篩螺旋輸送機又稱絞龍,適用于顆粒或粉狀物料的水平輸送,傾斜輸送,垂直輸送等形式。輸送距離根據機型不同而不同,一般從2米到70米。&nb慣性共振式給料機sp;.. 螺旋輸送機又稱絞龍,適用于顆粒或粉狀物料的水平輸送,傾斜輸送,垂直輸送等形式。輸送距離..
熱銷產品
-
DZSF直線振動篩
DZSF系列直線振動篩是由篩箱、篩框、振動電機、減振系統及座架等組成。直線振動篩是用振動電機作為振動源,固定在篩箱上兩臺相同的振動電機做相反方向自同步旋轉,振動電機所帶的偏心塊在旋轉時各個瞬間位置所產生的離心力之分力沿拋擲方向作往復運動
立即了解?DZSF直線振動篩
-
CZ系列倉壁振動器
-
ZG系列慣性振動器
-
GZ系列電磁振動給料機
GZ系列電磁振動給料機在生產流程中,用于把塊狀、顆粒狀、粉狀物料從貯料倉或漏斗中定量、均勻、連續地給到受料裝置中去。
立即了解?GZ系列電磁振動給料機